Erweiterung eines Fabrikgeländes

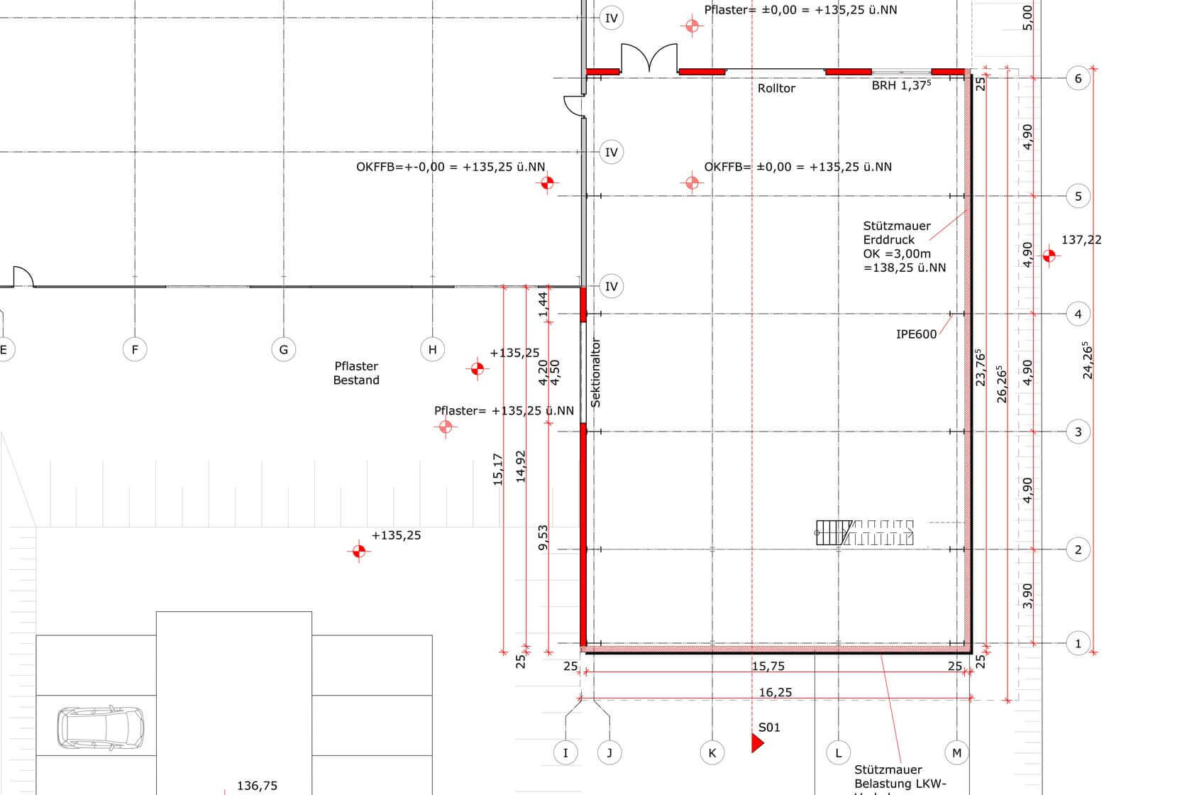
Ein bestehendes Fabrikgelände sollte um einen Anbau an eine der Produktionshallen erweitert werden. Im Anbau finden neue Lager- und Produktionsmöglichkeiten platz, sowie eine Anlieferungsrampe zur Optimierung der Arbeitsabläufe im Betrieb. Besonderer Augenmerk der Erweiterung lag bei der bestehenden Hangsituation und der Nähe zu eine stromführenden Oberleitungsmasten.

This is a unique website which will require a more modern browser to work!

Please upgrade today!